Mehrfamilienhäuser sorgfältig erneuern

Ein wichtiger Teil unseres Tätigkeitfelds ist die Sanierung, Renovation und Ertüchtigung bestehender Mehrfamilienhäuser. Denn daran glauben wir fest: Fast jedes Wohnhaus ist erhaltenswert, fast alle Liegenschaften lassen sich intressant aufwerten.

Umbau und Renovation Riedmattstrasse in Altwiedikon, Zürich – Schlafzimmer und Korridor

Bewohnt sanieren oder entmieten?

Kleinere Renovationen können im bewohnten Zustand ausgeführt werden. Der Auslöser für die Entmietung eines Hauses ist häufig die Erneuerung der vertikalen Wasser- und Abwasserstränge im Gebäude. Bei einer sog. Strangsanierung werden die Eingriffe umfassender, eine geschossweise Etappierung wird anspruchsvoll, auch weil die Stränge meist hinter den Küchen und Bädern verlaufen.

Dieser Entscheid hat Folgen: Während im bewohnten Zustand bewusst sanft saniert wird, stellt sich vor einer Entmietung die Frage nach sinnvollen Begleitmassnahmen.

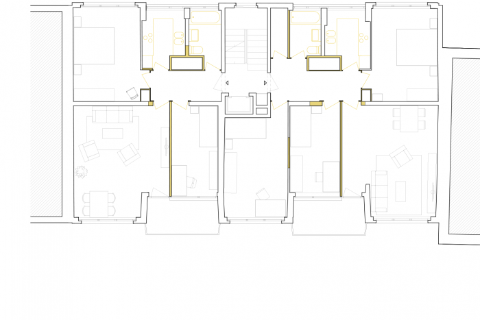
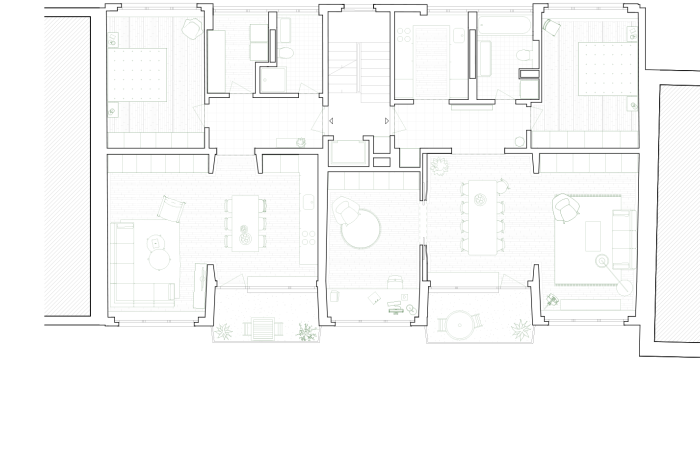
Renovation MFH Aarauerstrasse in Brugg/AG – Grundrisse Rück- und Umbau

Grundrissoptimierungen

Zeichnet sich ein grösserer Eingriff ab, empfehlen wir, die Gelegenheit zu nutzen, die Wohnungen behutsam an heutige Bedürfnisse anzupassen. So sind Kochen und Essen heute viel stärker miteinander verbunden. Wir reagieren darauf, indem wir die Räume und ihre Bezüge zueinander sanft anpassen, ohne den Charakter des Hauses zu verwischen.

Auch zeigen wir auf, wie Wohnungen flexibler gestaltet werden können. So kann eine Bibliothek später zum zweiten Kinderzimmer werden, oder oder laden zwei kleine Bäder eher zu einer späteren Alterswohngemeinschaft ein, als ein grosses.

Umbau Unter Zäune, Zürich – Historisches Wohnhaus mit sieben Geschossen

Die Frage der Heizung

Ein weitere Auslöser für Folgemassnamen kann der Ersatz der Heizung sein. Ist ein Wechsel auf eine Wärmepumpe angezeigt, rückt die Frage der Verbrauchskostenoptimierung nach. Eine sinnvolle Begleitmassnahme kann der Wechsel auf eine Fussbodenheizung sein - wenn die Böden ohnehin erneuert werden. Damit lässt sich der Temperaturhub der Pumpe deutlich reduzieren.

Potentiale nutzen

Nicht wenige Liegenschaften verfügen zudem über Ausnutzungreserven und Verdichtungspotential. Sei es der Ausbau eines Estrichs, ein Anbau zur Erweiterung der Wohnungen oder eine Aufstockung. Größere Eingriffe sind der richtige Zeitpunkt, die Wirtschaftlichkeit solcher Maßnahmen zu prüfen.

Neben diesen Fragen klären wir auch die technischen Aspekte eines Umbaus wie Altlastensanierung, Brandschutz und Erdbebensicherheit und integrieren sie sorgfältig in unsere Planung.

Die baulichen Grenzen einer Liegenschaft

Unser Ziel ist es, bestehende Mehrfamilienhäuser achtsam und mit Liebe zum Detail weiterzuentwickeln, damit sie funktional, lebenswert und uns auch für die kommenden Jahrzehnte erhalten bleiben.

Konstruktiv liegt die Ertüchtigungsgrenze meist bei in Tragkraft Decken, resp. beim Gewicht schalltechnisch ertüchtiigter Unterlagsböden. Die Verbesserung des Schalldämmmass der Böden erschöpft irgendwann die Tragkraft der Decken. Diese Grenze prägt in der Regel das sinnvolle Mass der Eingriffstiefe.


Interesse an einer Beratung? Kontaktieren Sie uns unverbindlich.