P188

Mehrfamilienhaus Riedmattstrasse, Zürich/ZH

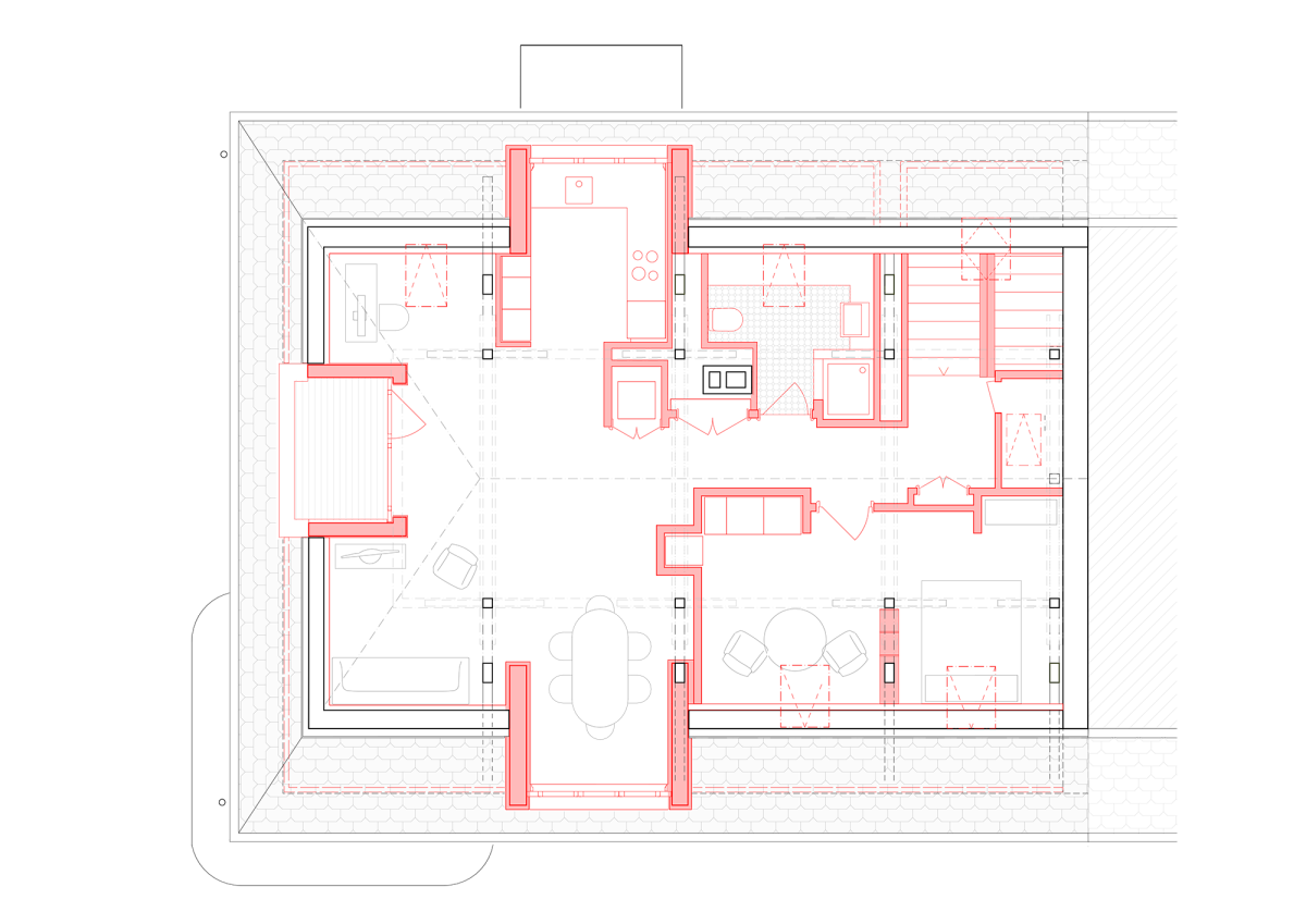
Das Mehrfamilienhaus in Alt-Wiedikon ist ein typischer Vertreter der Zwischenkriegszeit. Der Bau schliesst einen Block mit Vorgärten ab, grüne Zwischenräume prägen das Quartier und spiegeln die damalige Bauweise wider. Die Wohnungen waren für vier oder fünfköpfige Familien konzipiert worden, wobei zwei Kinder im selben Zimmer schliefen und ein mittleres, eigentlich dem Wohnraum zugewandtes Zimmer als Puffer genutzt werden konnte.

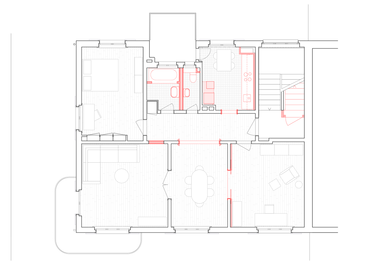
Das Bauvorhaben bestand aus zwei Teilobjekten: der Renovation der fünf Wohngeschosse und dem Ausbau des Estrichs zu einer zusätzlichen Wohneinheit

Die Einbauküchen aus den 1980er Jahren hatten das Ende ihrer Lebenszeit überschritten. Die Disposition dieser Küchen hatte zugunsten von Schrankflächen das Unterbringen eines Ess- und Arbeitstisches bedrängt. Die Bäder wurden zusammen mit den Oberflächen der restlichen Wohnräume sanft renoviert.

Wir nutzten den Eingriff, um die Grundrisse minim, aber präzise zu optimieren: Die neue Einbauküche schuf etwas mehr Platz für einen kleinen Küchentisch. Küche und mittiges Zimmer erhielten grosszügige Öffnungen zum Korridor hin. Letzteres kann so als Esszimmer in engerer Beziehung mit der Küche agieren. Es kann aber weiterhin als Puffer für ein weiteres Kind genutzt werden, wenn die zwei – schalltechnisch optimierten – Türflügel geschlossen werden.

Den Estrich bauten wir zu einer zusätzlichen Wohneinheit aus. Die flache Dachneigung und der tiefe Kniestock waren eine besondere Herausforderung. Wir reagierten darauf mit zwei breiten Lukarnen für die Küche und den Essbereich. Ein eingeschnittener Balkon gibt zudem Zugang ins Freie, eine in Dachwohnungen selten anzutreffender, aber sehr geschätzter Mehrwert.

Auftraggeberin
Private Erbengemeinschaft

Erbrachte Leistungen
Gesamtleitung, Architekt:in, Bauleitung

Mitarbeit
Gisella Chacòn, Jaime Gil Simoes, Jessica Wälti, Emina Rastoder

Fachplanende
Bauingenieur: Ruggli & Partner Bauingenieure AG, Unterengstringen
Sanitär und Lüftungsplanung: Reu GmbH, Langnau a. A.
Bauphysik: Steigmeier Akustik + Bauphysik GmbH, Baden

Realisierung: November 2024 bis Juni 2025